Athol house / 2023

A multi-level contemporary home designed to embrace the natural slope of the terrain. Featuring clean geometry, panoramic glazing, and warm wood finishes, the house blends modern aesthetics with functionality. The layout maximizes light, views, and spatial flow, offering a private yet open living experience in a lush green setting.
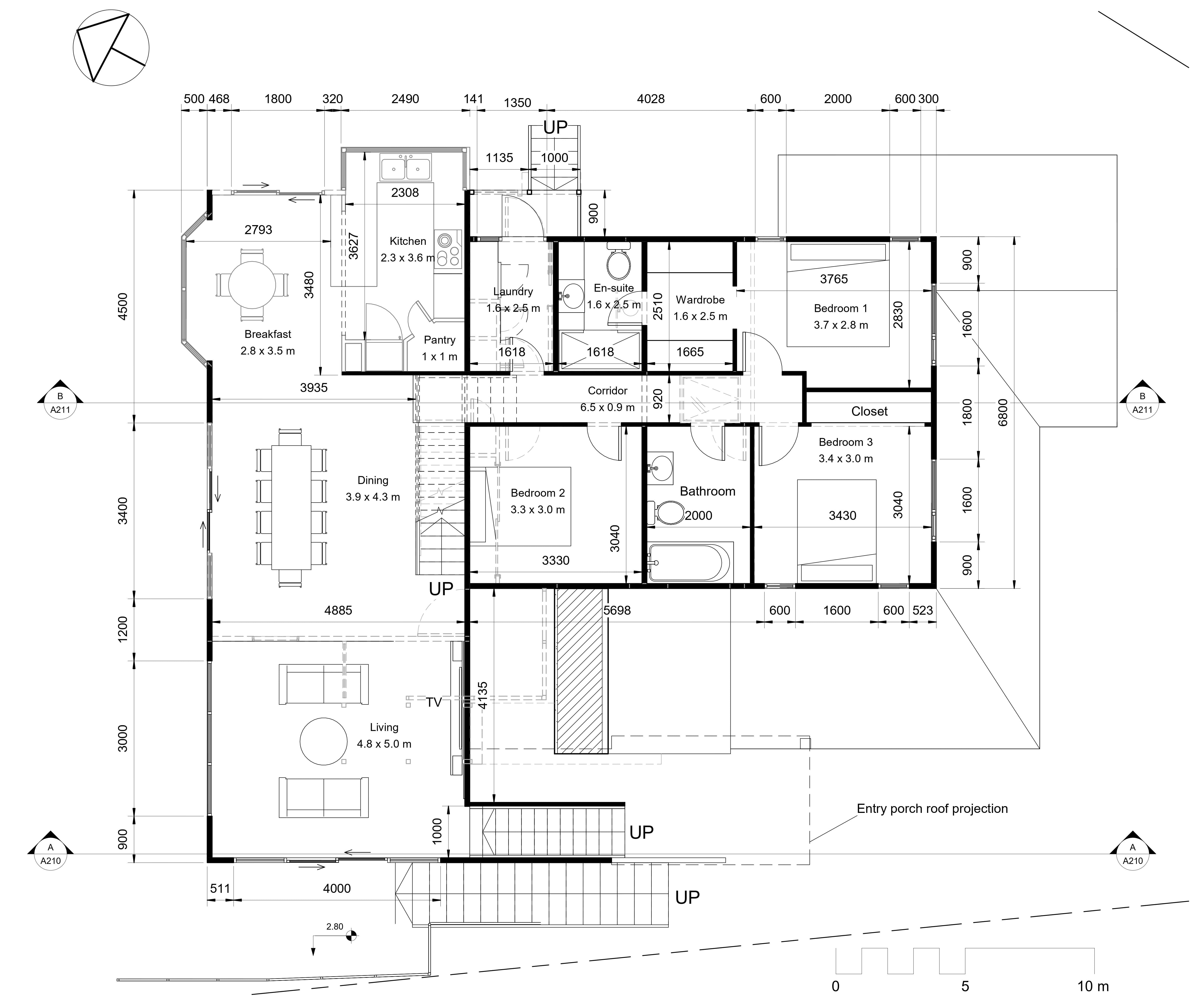
The project was remodeling of existing house built in early 1980. Remodeling covered addition of bedrooms and expansion of common areas. Design addressed challenges of existing structure and location on steep slope while meeting customer needs and wishes.

RELATED PROJECTS

CONTACT US

EMAIL

welcome@gumaconcept.com

PHONE KZ

+7 (701) 221 0948

PHONE USA

+1 929 471 1262

INSTAGRAM

© GUMA CONCEPT. ALL RIGHT RESERVED

PRIVACY POLICY